以下のボタンから該当する内容をご選択ください。
アルバックス日進 のお問い合わせは、住まいの情報館まで
建物管理番号:060070
申込可能
内見のご予約について
×
住まいの情報館
総合管理部 東京都港区東新橋1-9-2 汐留住友ビル
アルバックス日進 の賃料・その他費用について
| 賃料 | 12.00万円 |
|---|
| 管理費 | なし |
|---|---|
| 共益費 | 10,000円/月 |
| 雑費 | なし |
| 敷金 | 1ヶ月 |
|---|---|
| 礼金 | 0.5ヶ月 |
| 敷引 | 1ヶ月 |
| 鍵交換代等 | |
|---|---|
| 保証金 | なし |
| 保証金償却 |
| その他一時金 | |
|---|---|
| ランニングコスト | ダーウィンリリーフ:990円/月 |
アルバックス日進 の物件概要
| 物件種別 | 貸マンション 定期借家 |
|---|---|
| 物件名/部屋番号 | アルバックス日進 |
| 所在地 | 愛知県日進市 |
| 交通 |
名鉄豊田線 日進 徒歩12分 名鉄豊田線 米野木 徒歩18分 |
| 築年月 | 2017年10月 |
|---|---|
| 建物構造 | RC |
| 建物階建/所在階 | 15階建/11階部分 |
| 総戸数 | |
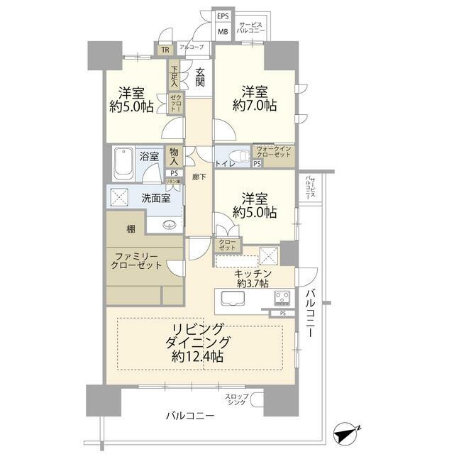
| 間取り | 3LDK |
| 間取り内訳 | LD12.4 K3.7 洋7 洋5 洋5 |
| 専有面積 | 83.58㎡ |
|---|---|
| バルコニー | 21.00㎡ |
| 主要採光面 | 東向き |
| 駐車場 | 有 無料 |
| バイク置場 | |
| 駐輪場 |
| 特記事項 | |
|---|---|
| 設備 | B・T別 オートバス シャワー 追焚機能 浴室乾燥機 温水洗浄便座 シャワー付洗面化粧台 ガスコンロ可 3口以上コンロ カウンターキッチン システムキッチン 食器洗浄乾燥機 浄水器 収納スペース クローゼット ウォークインクローゼット シューズボックス ダウンライト 室内洗濯機置場 フローリング 床暖房 エアコン オートロック モニタ付インターホン 防犯カメラ 2面バルコニー エレベーター 宅配BOX 駐車場2台分 分譲タイプ 角部屋 |
| 温泉 | |
| リフォーム履歴 | |
| リノベーション履歴 | |
| 周辺環境 | [小学校] 梨の木小学校まで480m |
| 備考 | ペット不可 禁煙者限定 定期借家2027 分譲賃貸マンション 3LDK 角部屋 駐車場2台付 |
| 現況 | 空家 |
|---|---|
| 入居日 | 即時 |
| 取引態様 | ★専任媒介 |
| 賃貸区分 | 貸マンション 定期借家 |
|---|---|
| 契約期間 | 2027年11月30日 |
| 更新料 | なし |
| 入居条件 | |
|---|---|
| フリーレント | |
| 保険等加入 | 加入要 / 2年間 22,000円 |
| 管理方式 | |
| 賃貸保証 | 加入要 株式会社インシュアランス |
| 設備保証 | |
| クレジットカード決済 | |
| 一括型共同住宅 | |
| 広告転載 | ■アットホーム媒体:要確認 |
| 報酬 | ■客付手数料 借主:100% 客付:100% ■広告費:賃料の50% 迄相談 |
| 物件番号 | 253584 |
| 情報更新日 | 2025-10-29 |
|---|
| 公開満了日 |
|---|
アルバックス日進 の地図
愛知県日進市 周辺の地図
※地図の場所は、物件の住所情報を基に自動表示しております。実際の物件所在地とは異なる場合がございますので、正確な場所については不動産会社までお問い合わせください。
アルバックス日進 のお問い合わせは、住まいの情報館まで
建物管理番号:060070
申込可能
住まいの情報館
総合管理部 東京都港区東新橋1-9-2 汐留住友ビル
賃貸物件のご相談は住まいの情報館へ。IT重説も可能です。土・日営業。
| 担当店舗 | 株式会社ダーウィンプラス |
|---|---|
| Tel/Fax | Tel: 03-5565-7771 / Fax: 03-5148-7771 |
| 所在地 | 〒104-0061 東京都中央区銀座7丁目15-5 |
| アクセス | 東京メトロ日比谷線 / 東銀座駅 徒歩5分 |
| 営業時間 | 10:00~19:00 / 水曜定休 |
| 免許番号 | 国土交通大臣免許(2)第8738号 |
| 所属団体名 | 全日本不動産協会 |
アルバックス日進 の他の空室
アルバックス日進
3LDK / 83.58㎡
賃料12.00万円
管理費 なし
敷金 1ヶ月 / 礼金 0.5ヶ月
現在閲覧中