以下のボタンから該当する内容をご選択ください。
堺市北区 のお問い合わせは、住まいの情報館まで
建物管理番号:0003990
申込可能
内見のご予約について
×
住まいの情報館
総合管理部 東京都港区東新橋1-9-2 汐留住友ビル
堺市北区 の賃料・その他費用について
| 賃料 | 16.50万円 |
|---|
| 管理費 | なし |
|---|---|
| 共益費 | なし |
| 雑費 | なし |
| 敷金 | 1ヶ月 |
|---|---|
| 礼金 | 2ヶ月 |
| 鍵交換代等 |
| 保証金 | なし |
|---|---|
| 保証金償却 |
| その他一時金 | |
|---|---|
| ランニングコスト | ダーウィンリリーフ:990円/月 |
堺市北区 の物件概要
| 物件種別 | 貸戸建住宅 |
|---|---|
| 物件名/部屋番号 | 堺市北区 |
| 所在地 | 大阪府堺市北区 |
| 交通 |
大阪メトロ御堂筋線 北花田 徒歩13分 JR阪和線 浅香 徒歩8分 JR阪和線 堺市 徒歩16分 |
| 築年月 | 1991年01月 |
|---|---|
| 建物構造 | 鉄骨造 |
| 建物階建/所在階 | 3階建 |
| 総戸数 | |
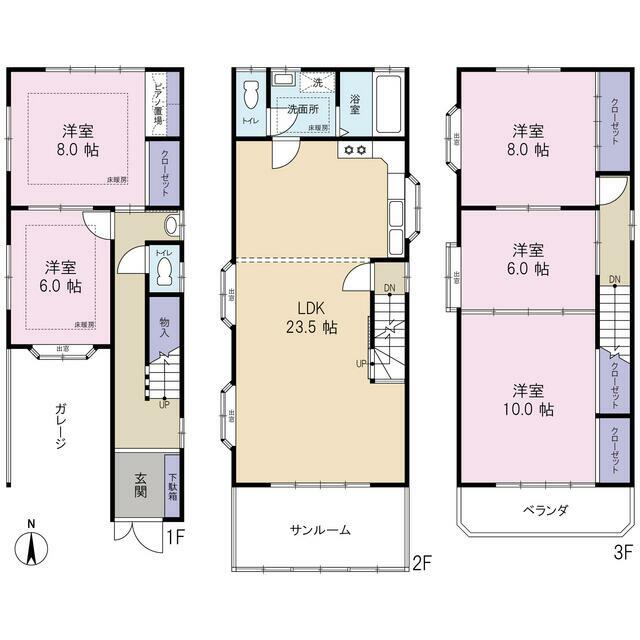
| 間取り | 5LDK |
| 間取り内訳 | 洋8 洋6 LDK23.5 洋8 洋6 洋10 |
| 専有面積 | 142.96㎡ |
|---|---|
| バルコニー | |
| 主要採光面 | 南向き |
| 駐車場 | 有 無料 |
| バイク置場 | |
| 駐輪場 |
| 特記事項 | |
|---|---|
| 設備 | B・T別 オートバス シャワー 追焚機能 浴室乾燥機 ミストサウナ トイレ2ヶ所 温水洗浄便座 シャワー付洗面化粧台 ガスコンロ可 3口以上コンロ システムキッチン 収納スペース クローゼット シューズボックス 室内洗濯機置場 出窓 フローリング 床暖房 モニタ付インターホン バルコニー 閑静な住宅街 |
| 温泉 | |
| リフォーム履歴 | |
| リノベーション履歴 | |
| 周辺環境 | [小学校] 東浅香山小学校まで320m |
| 備考 | ペット相談可(飼育時敷金1カ月UP) 禁 閑静な住宅地の5LDK戸建 JR堺市駅・御堂筋線北花田駅のダブルアクセス可能 |
| 現況 | 居住中 |
|---|---|
| 入居日 | 予定 2026年06月30日 |
| 取引態様 | ★専任媒介 |
| 賃貸区分 | 貸戸建住宅 |
|---|---|
| 契約期間 | 2年 |
| 更新料 | 新賃料 1ヶ月 |
| 入居条件 | ペット相談 |
|---|---|
| フリーレント | |
| 保険等加入 | 加入要 / 2年間 22,000円 |
| 管理方式 | |
| 賃貸保証 | 加入要 株式会社インシュアランス |
| 設備保証 | |
| クレジットカード決済 | |
| 一括型共同住宅 | |
| 広告転載 | ■アットホーム媒体:要確認 |
| 報酬 | ■客付手数料 借主:100% 客付:100% ■広告費:賃料の50% 迄相談 |
| 物件番号 | 274987 |
| 情報更新日 | 2026-04-17 |
|---|
| 公開満了日 |
|---|
堺市北区 の地図
大阪府堺市北区 周辺の地図
※地図の場所は、物件の住所情報を基に自動表示しております。実際の物件所在地とは異なる場合がございますので、正確な場所については不動産会社までお問い合わせください。
堺市北区 のお問い合わせは、住まいの情報館まで
建物管理番号:0003990
申込可能
住まいの情報館
総合管理部 東京都港区東新橋1-9-2 汐留住友ビル
賃貸物件のご相談は住まいの情報館へ。IT重説も可能です。土・日営業。
| 担当店舗 | 株式会社D2 |
|---|---|
| Tel/Fax | Tel:050-3091-7771 / Fax:03-4496-4440 |
| 所在地 | 〒105-0021 東京都港区東新橋1-9-2 |
| アクセス | 都営大江戸線「汐留駅」または、ゆりかもめ「汐留駅」 徒歩1分 |
| 営業時間 | 10 :00~19:00 火曜、水曜定休 |
| 免許番号 | 国土交通大臣免許(3)第8738号 |
| 所属団体 | 全日本不動産協会 |
堺市北区 の他の空室
堺市北区
5LDK / 142.96㎡
賃料16.50万円
管理費 なし
敷金 1ヶ月 / 礼金 2ヶ月
現在閲覧中